Grumbles Cottage At Loggerhead Yard
Preview only — see all hotel photos
See all 18 photos 1 /
18
7.4
116 yorum
Best options for your travel dates
Oteli haritada göster
Grumbles Cottage At Loggerhead Yard
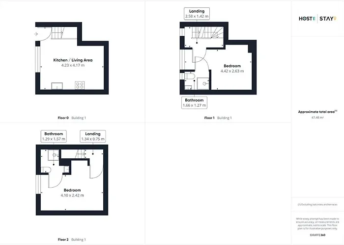
Grumbles Cottage At Loggerhead Yard, Saltwick Bay'den 25 dakikalık, Caedmon Memorial'dan ise 15 dakikalık bir yürüyüş uzaklığındadır. Bu 2 yatak odalı konaklama tesisinde tam donanımlı mutfak ve 2 banyo odası mevcuttur.
Konaklama tesisi Whitby şehrinin kalbinden 5 dakika yürüme mesafesinde Whitby Deniz Feneri yakınında bulunmaktadır. Британская yemeklerini servis eden Magpie Cafe, villaya 500 metre uzaklıkta yer almaktadır.
Durham Tees Valley havaalanı bu konaklama biriminden 75 kilometre uzaklıkta bulunur.
Daha fazla +
Daha az -
Bekleyin lütfen, sizin için müsait odaları arıyoruz.
Otelleri arıyoruz
Kolaylıklar
Genel Olanaklar
- Wi-Fi
- Evcil hayvanlar
Olanaklar
Genel tanıtım:
- Tesis genelinde sigara içilemez
- Wi-Fi
- Evcil hayvanlara izin verilir
Yemek:
- Su ısıtıcısı
Oda imkanları:
- Yemek masası
- Ücretsiz banyo malzemeleri
- Halı kaplı zemin
Konaklama Politikası
Giriş: 16:00-22:00 arası
Çıkış: 07:00-10:00 arası
Harita
Turistik Yerler
Turistik yerler
- Captain Cook Memorial Museum (300 m)
- Whitby Abbey (600 m)
Havalimanları
- Durham Tees Valley Havaalani (71 km)
Tren istasyonları
- Whitby Train Station (100 m)
Yorumlar
Yorum yaz
%100 Doğrulanmış Yorumlar
7.4 /10